RA House
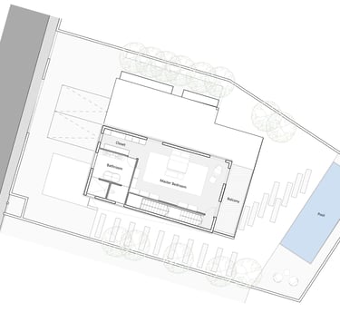
בית פרטי עבור משפחה בת חמש נפשות במרכז הארץ. צורת המגרש האלכסונית הכתיבה את העמדתו של הבית על המגרש ואת התייחסותו אל הגינה. בקומת הקרקע תוכנן החלל הציבורי הכולל מטבח, סלון ופינת אוכל- כולם צופים לחצר ולבריכה בשביל לקבל את הייחודיות של הצמחייה והמים. בנוסף, בקומת הקרקע תוכנן משרד ביתי עם כניסה חיצונית. בקומה א' תוכננה יחידת הורים הכוללת איזור שינה, חדר ארונות וחדר רחצה בשילוב של נגרויות ויחידות מדפים לאורך כל היחידה. יחידת ההורים צופה לכל צידי המגרש, בחזית הצופה לרחוב ובחזיתות הצידיות תוכננו רפפות אלומיניום בשביל לספק ליחידת ההורים פרטיות מלאה ואת אפשרות הבחירה של לפתוח או לסגור את הרפפות. בחזית הבריכה תוכננו שני פתחים גדולים ללא רפפות בשביל לקבל את האור הטבעי מהגינה כלפי פנים החדר. קומת המרתף תוכננה עבור ילדי הבית עם פינת משפחה, חדרי רחצה, חדרי שינה וחצר חפורה היוצאים אליה מכל חדר.
שטח מגרש: 600 מ"ר שטח בנוי: 380 מ"ר שלב: בתכנון












קומת קרקע






















